46 Calder Road, Darlington
Fully Furnished Terrace – Ready to Move In
Positioned on a quiet, leafy, tree-lined street in the heart of Darlington, this charming and fully furnished terrace offers a rare opportunity to enjoy city-fringe living with space, character, and convenience.
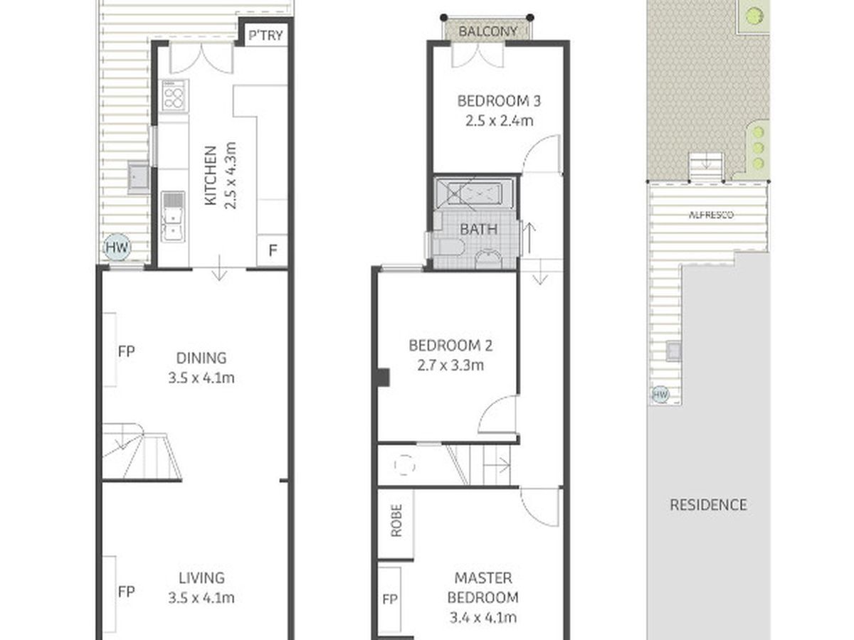
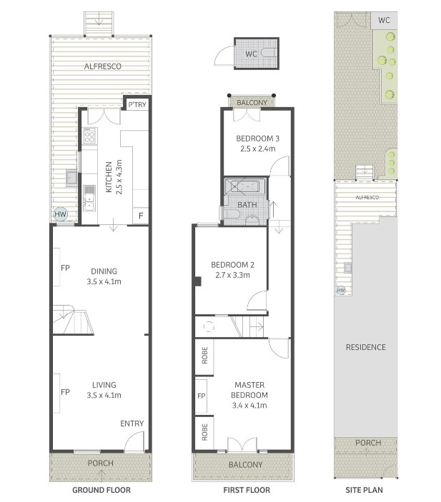
Spread across two levels and filled with timeless charm, the home features a versatile layout ideal for families, professionals, or sharers. With generous interiors, outdoor entertaining space, and rear lane access, this residence is ready to move in immediately.
Fully Furnished & Ready to Move In
The property is offered fully furnished, including:
- Sofa
- Dining table
- Refrigerator
- Television
- Queen-size bed (1)
- Single beds (2)
- Washing machine and dryer
Simply bring your suitcase and settle in.
Property Features:
- Three bedrooms and bathroom located on the first floor
- Spacious master bedroom with built-in wardrobes and a classic street-facing balcony
- Separate living and dining areas with seamless flow
- Kitchen opening to alfresco deck area via French doors
- Private deck flowing to a leafy, north-facing courtyard
- High ceilings, elegant period details, and original 6-inch floorboards
Prime Location:
Ideally located within close proximity to:
- Darlington Public School
- The University of Sydney
- RPA Hospital
Public transport options:
- Newtown’s vibrant King Street, cafés, restaurants, and shops
This is a rare opportunity to secure a fully furnished, character-filled terrace in one of Sydney’s most sought-after inner-city locations.

